상품 이미지 새창 보기

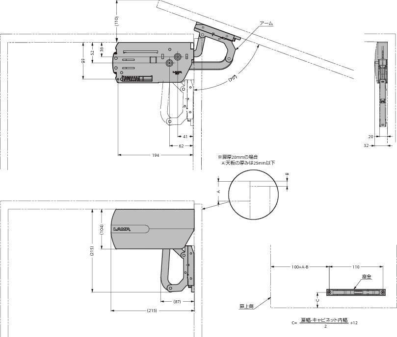
랩콘스테이 EZS-ELAN형 랩콘스테이 EZS-ELAN형