상품 이미지 새창 보기

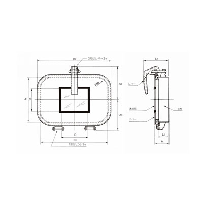
원터치창 하이네크형 투명창붙이타입