상품 이미지 새창 보기

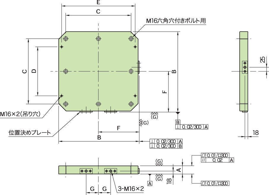
BJ040-N MC플레이트(플레인타입) BJ040-N MC플레이트(플레인타입)