상품 이미지 새창 보기

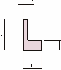
엣지프로파일19×11.5 엣지프로파일19×11.5